
Moderná novostavba v štádiu holodom
- Predaj
- Rodinný dom
- 4 izb
- 722 m2
- Nitra
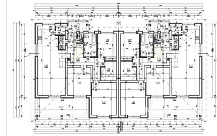
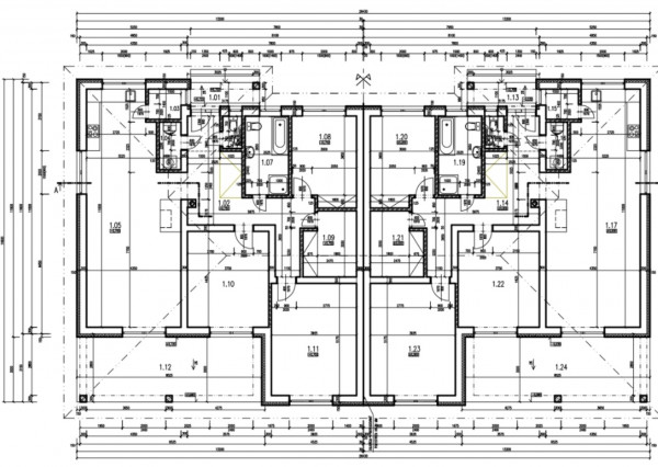
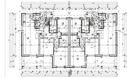
V ponuke je na predaj moderná 4-izbová novostavba dvojdomu v štádiu holodom na 5-árovom pozemku v novovybudovanej, príjemnej lokalite pri Nitre. Dom je navrhnutý s dôrazom na funkčnosť a komfortné bývanie.
Dispozične pozostáva:
Stavba je z kvalitnej tehlovej konštrukcie s 15 cm zateplením. Dom má sedlovú strechu s montovanou betónovou škridlou a väzníkovým krovom. Na pozemku sú všetky inžinierske siete (elektrina, voda, plyn) a žumpa s kapacitou 10 m³.
Okrem výbornej dispozície má dom okná s trojsklom nemecké Salamander, ktoré zabezpečujú výbornú izoláciu a znižujú náklady na vykurovanie. Dom je vybavený podlahovým kúrením, ktoré zabezpečuje rovnomerné rozloženie tepla v celom priestore. Celý dom spĺňa kritériá energetickej triedy A1, čo zaručuje nižšie prevádzkové náklady a vysokú energetickú účinnosť.
Stavba bola dokončená v roku 2024 a čaká na nového majiteľa, ktorý si ju môže dokončiť podľa svojich predstáv.
Bonusom je ideálna juhovýchodná orientácia, ktorá zabezpečuje dostatok denného svetla počas celého dňa a príjemnú atmosféru v obytných priestoroch.
Tento dom sa nachádza v tichej lokalite s výbornou dostupnosťou – len pár minút od diaľnice R1, čo zaručuje rýchly prístup do Nitry. V obci je zabezpečené MHD spojenie, čo ocenia aj tí, ktorí preferujú verejnú dopravu.
Táto nehnuteľnosť ponúka komfortné a moderné bývanie v slnečnom a tichom prostredí pri lese.
Zarezervujte si obhliadku ešte dnes!
Obec: | Nitra |
---|---|
Okres: | Nitra |
Kraj: | Nitriansky kraj |
Druh: | Domy |
Typ: | Predaj |
Typ domu: | Rodinný dom |